정릉 아리랑 시장
Public space, Commissioned
서울 성북구 아리랑로19길 10
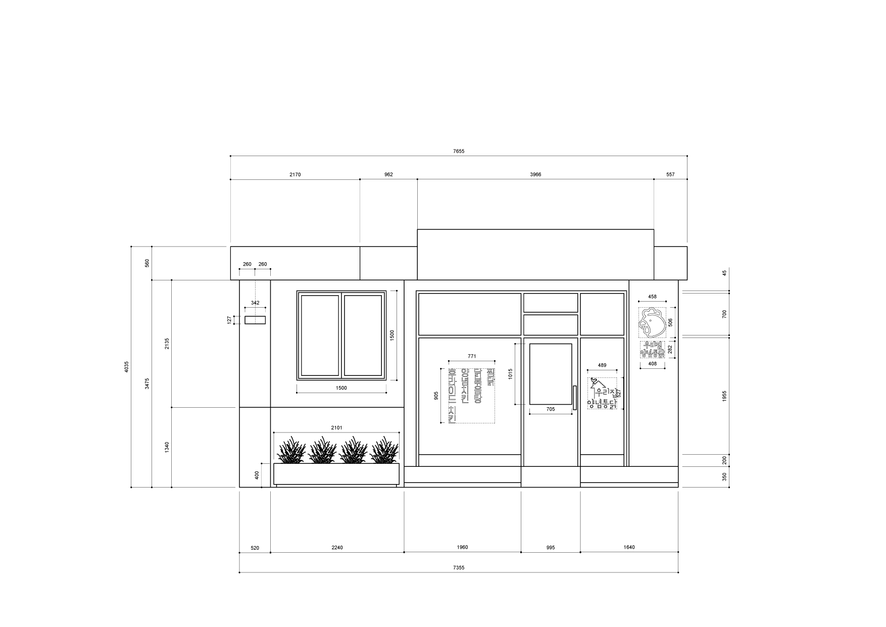
정릉시장 식당 파사드 리모델링
2019년 청년몰 대학협력사업의 정릉 아리랑시장 프로젝트로 참여하게 되었습니다. 기존의 오래되고 낡은 시장의 이미지를 국민대학교 교수진과 학부생이 참여해 시장의 일부 가게를 리노베이션하여 대학생이 이용할 만한 가게로 변화시킨다는 취지로 시작된 프로젝트입니다. 가게의 입면을 디자인하고 도면화하여 실무 디자이너와 함께 작업했습니다. 기존의 프로젝트와 달리 실제 공간을 다루어 현장에 일부 참여하여 시공의 과정을 배워 볼 수 있었습니다.
2019년 청년몰 대학협력사업의 정릉 아리랑시장 프로젝트로 참여하게 되었습니다. 기존의 오래되고 낡은 시장의 이미지를 국민대학교 교수진과 학부생이 참여해 시장의 일부 가게를 리노베이션하여 대학생이 이용할 만한 가게로 변화시킨다는 취지로 시작된 프로젝트입니다. 가게의 입면을 디자인하고 도면화하여 실무 디자이너와 함께 작업했습니다. 기존의 프로젝트와 달리 실제 공간을 다루어 현장에 일부 참여하여 시공의 과정을 배워 볼 수 있었습니다.






각 식당의 특징을 고려해 로고를 (아이콘, 타입) 디자인하고 글꼴을 선정하였습니다.