CURE HOUSE
Residence
서울 종로구 자하문로 100-1
116.03m2
정갈한 따뜻함이 주는 치유의 공간
퇴직을 앞둔 중년 부부의 개인 주택을 설계했습니다. 청운동에 위치해 1층에는 관광객을 위한 게스트 하우스를 운영하고 독립한 자녀가 방문하면 게스트룸을 자녀의 방으로 사용하도록 계획했습니다. 도심 속에서 자연과 전통을 존중하며 언제나 손님을 환영하는 큐어 하우스는 활동이 적은 노부부에게 충분한 에너지를 주는 명상적 공간으로 존재합니다.
퇴직을 앞둔 중년 부부의 개인 주택을 설계했습니다. 청운동에 위치해 1층에는 관광객을 위한 게스트 하우스를 운영하고 독립한 자녀가 방문하면 게스트룸을 자녀의 방으로 사용하도록 계획했습니다. 도심 속에서 자연과 전통을 존중하며 언제나 손님을 환영하는 큐어 하우스는 활동이 적은 노부부에게 충분한 에너지를 주는 명상적 공간으로 존재합니다.



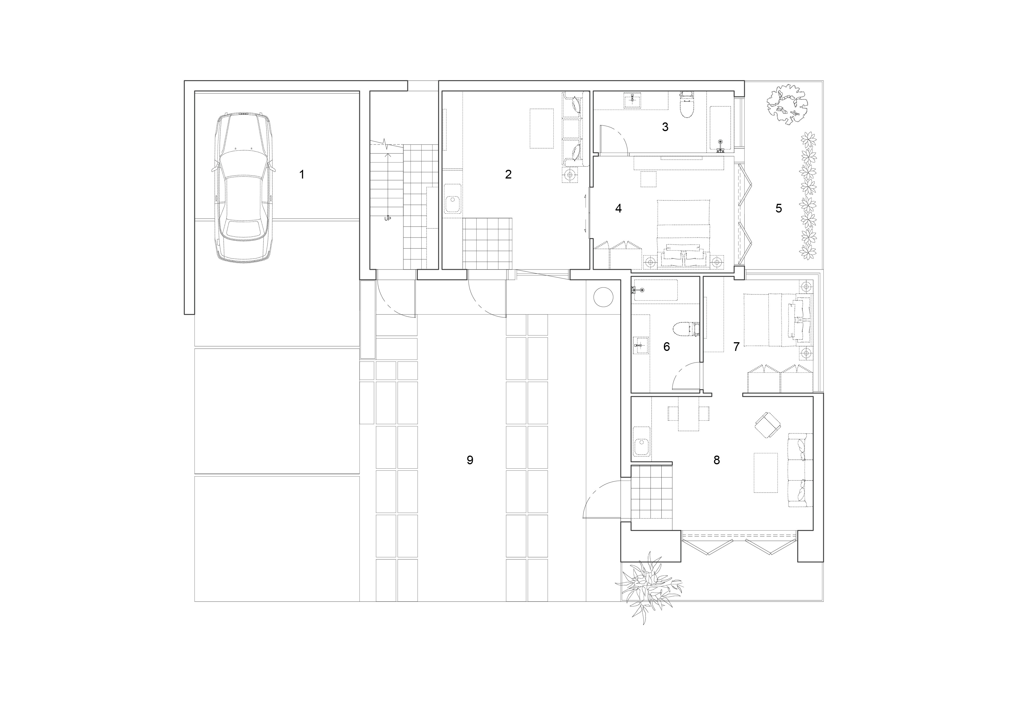
1. Parking lot
2. Guest room01_livingroom
3. G01_bathroom
4. G01_bedroom
5. G01_terrace
6. Guestroom02_bathroom
7. G02_bedroom
8. G02_livingroom
9. Garden
10. Master livingroom
11. Kitchen, Diningroom
12. Restroom
13. Laundry room
14. Closet
15. Master bedroom
16. Bathroom
17. Veranda
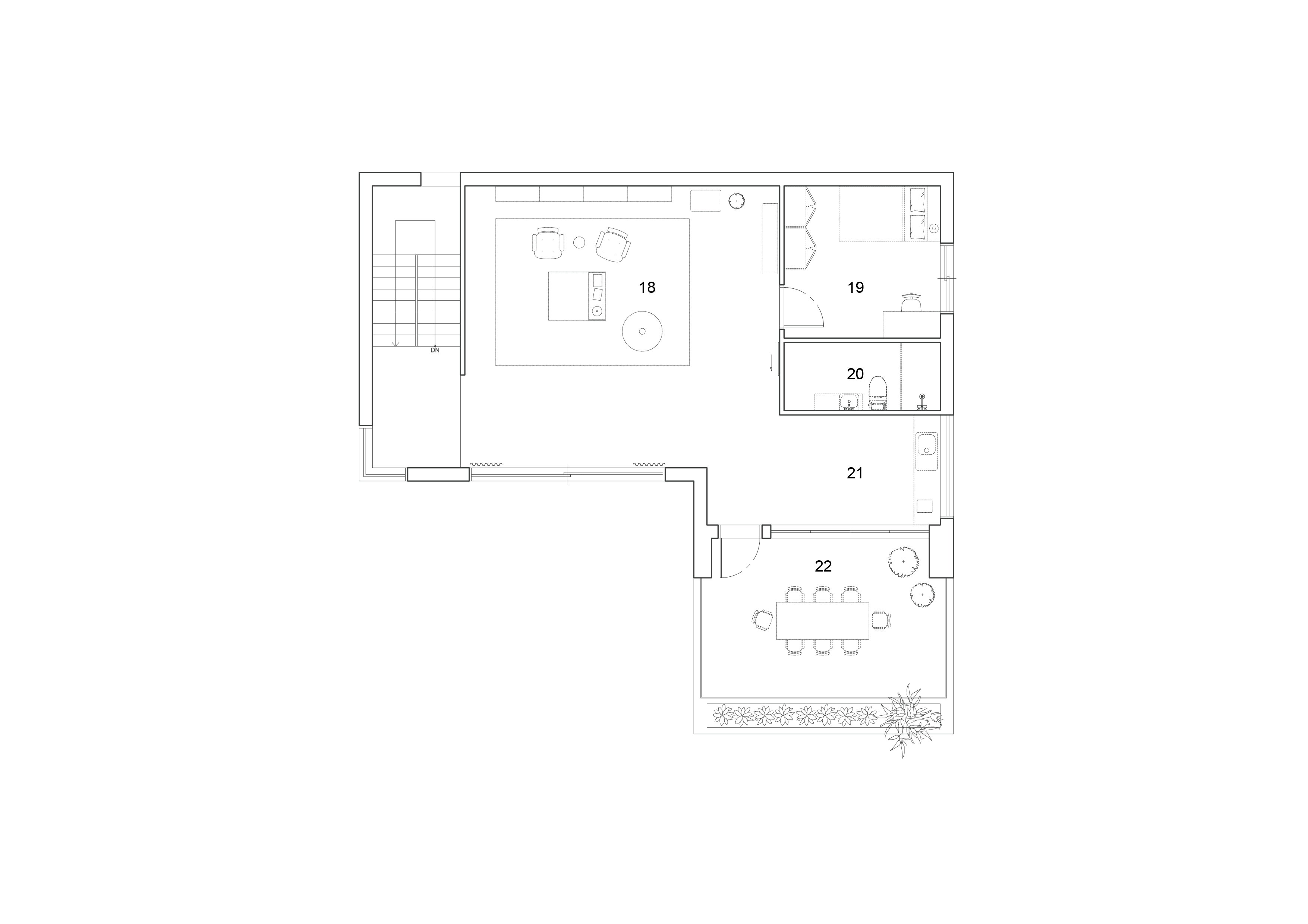
18. Family room
19. Children room
20. Bathroom
21. Kitchen
22. Veranda
큐어하우스는 게스트, 호스트, 호스트의 가족을 위한 공간으로 이루어져 있으며
층은 프라이버시와 공간의 대상에 구획이 생기는 역할을 합니다.
1층 게스트 공간은 낮은 높이의 가구들과 미니멀한 디자인으로 머무르는 동안 한국의 정취를 느낄수 있게 계획했스으며 각 실의 침실옆에 작은 테라스를 두어 프라이빗한 공간을 경험하게 하였습니다.
2층은 호스트 공간으로 부부가 한 층에서 모든 생활이 가능하도록 설계했습니다. 단차를 주어 공간을 구획했고 고급스럽고 한국의 목가구를 본 받은 가구로 공간에 정갈하고 깨끗하며 여유로운 느낌을 주고자 했습니다.
1층 게스트 공간은 낮은 높이의 가구들과 미니멀한 디자인으로 머무르는 동안 한국의 정취를 느낄수 있게 계획했스으며 각 실의 침실옆에 작은 테라스를 두어 프라이빗한 공간을 경험하게 하였습니다.
2층은 호스트 공간으로 부부가 한 층에서 모든 생활이 가능하도록 설계했습니다. 단차를 주어 공간을 구획했고 고급스럽고 한국의 목가구를 본 받은 가구로 공간에 정갈하고 깨끗하며 여유로운 느낌을 주고자 했습니다.
3층은 가족을 위한 공간으로 좀 더 색감이 강하거나 거친 마감재를 활용해 재미를 주고 자유롭고 다양한 행위가 일어나도록 유도했습니다.
또한 가장 큰 야외공간을 배치해 가족의 모임이 있을 때 활용하는 공간으로 계획하였습니다.
또한 가장 큰 야외공간을 배치해 가족의 모임이 있을 때 활용하는 공간으로 계획하였습니다.